nouveaux gâbles
front emblématique
Le long du quai des Anglais, les immeubles à Gâbles conçus par ANMA marquent le paysage portuaire de Dunkerque depuis 2012. Dix ans plus tard, l’agence saisit l’opportunité de prolonger cette skyline emblématique au bord du chenal. Elle dessine une nouvelle série de logements à gâbles et affirment la singularité de ce front bâti.
Ce retour sur site, dans la ZAC du Grand Large, s’inscrit dans un contexte de transformation urbaine profonde, où les défis contemporains — transition climatique, tensions économiques, mutation des usages — appellent à renouveler nos cadres d’intervention.
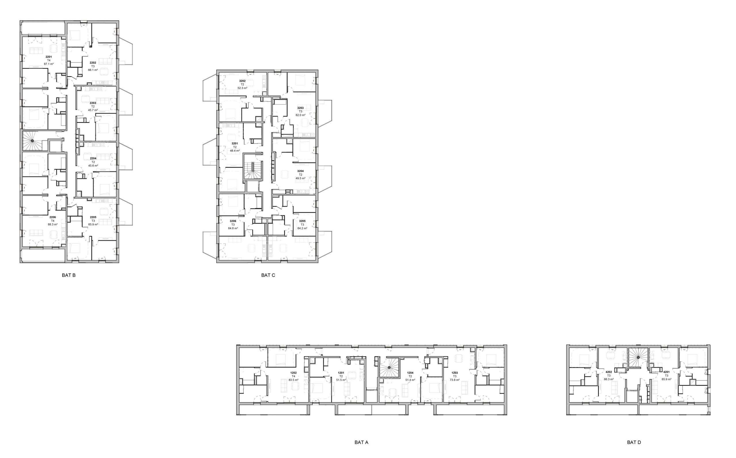
Les Gâbles 2, ce sont 85 logements qui réinterprètent les principes fondateurs du premier projet et déclinent des codes architecturaux actualisés au regard des enjeux actuels en matière de qualité d’usage, de pérennité et de sobriété constructive.
vivre
face au chenal
ANMA conçoit ces nouveaux Gâbles en chaussant les lunettes de l’habitant : elle redouble d’attention à chaque geste du quotidien. 100 % des logements sont ainsi pourvus d’espaces extérieurs privatifs à l’intimité soigneusement travaillée. Loggias filantes et généreuses orientées sud ouest avec vues sur le bassin, balcons d’usage équipés de rangements, séjours baignés de lumière, cuisines en premier jour : la qualité d’usage dans les détails de bon sens.
Les typologies d’appartement s’imbriquent dans un gabarit fin qui maximise les logements traversants ou double orientés. En toiture, des duplex sous les pentes des Gâbles présentent des volumes atypiques et des surfaces habitables généreuses répondant à la diversité des modes d’occupation.
Cœur d’ilot paysagé
Et maritime
Le paysage constitue un enjeu central du projet : pensé en étroite relation avec le bâti, il accompagne les respirations architecturales, les percées visuelles vers le port et, depuis les logements, les vues ouvertes sur des jardins partagés en cœur d’îlot. En pleine terre et largement végétalisés, ces jardins maritimes prolongent le corridor écologique du chenal et composent une trame vivante avec les milieux existants. La palette végétale, fondée sur des essences indigènes, s’inspire des paysages dunaires du littoral flamand, ancrant le projet dans l’écosystème naturel de Dunkerque.
Une mosaïque de milieux paysagers qui s’imbriquent, chacun apportant sa contribution en faveur du vivant : des zones semi-humides conçues pour capter et filtrer les eaux de pluie, des prairies ouvertes comme espaces de rencontre et de détente, et des séquences forestières protectrices, garantes d’ombre, de fraîcheur et d’intimité.
frugalité
et rationnalité
En 2024 l’agence débute un partenariat avec Time to Beem afin d’apprivoiser leur outil numérique permettant de calculer l’ACV des bâtiments dès les phases amont des études. Les Gâbles 2 devient alors le pilote d’un nouveau processus de conception intégrée : des simulations carbone et des préanalyses du cycle de vie ont été menées dès la genèse du projet, permettant d’anticiper l’impact des matériaux et des systèmes constructifs sur le bilan carbone global de l’opération.
L’enveloppe structurelle des 6 bâtiments est conçue en maçonnerie de blocs isolant en pierre ponce. Une solution constructive sans cuisson, résistante au feu et naturellement isolante, qui participe activement à la stratégie de décarbonation de l’opération.
Les gâbles 2 est également passé sous le crible de notre Tableau de bord qualité Logement afin de qualifier objectivement et optimiser la qualité d’usage du projet selon son contexte.
ÉQUIPES PROJET
MAÎTRISE D’OEUVRE
Architecte : ANMA
CONCOURS
Pierre Chancerel
ÉTUDES
Pierre Chancerel
Chantal Hung
Sébastien Moinet
CHANTIER
Sylvain-Pierre Bachoc
FICHE TECHNIQUE
STATUT Chantier en cours
MAÎTRISE D’OUVRAGE Nexity
CALENDRIER Livraison prévisionnelle 2027
SURFACE 5 300 m² SHAB
soit 62 m² habitable par logement
TRAVAUX 10,6 M€ HT
IC CONSTRUCTION 916 kgeqCO2/m² Seuil 2022
PERSPECTIVES ANMA, Vertex
VOIR +
Dunkerque, Les Gâbles
Dunkerque, ZAC du Grand Large
Lieusaint, Logements de l’Etang