démonstrateur
d’une approche urbaine
L’ilot BE4, au cœur de la ZAC Vallon Régny conçue par ANMA, est démonstrateur des invariants architecturaux développés par l’agence, au service de qualité de vie.
4 approches fondamentales s’y conjuguent :
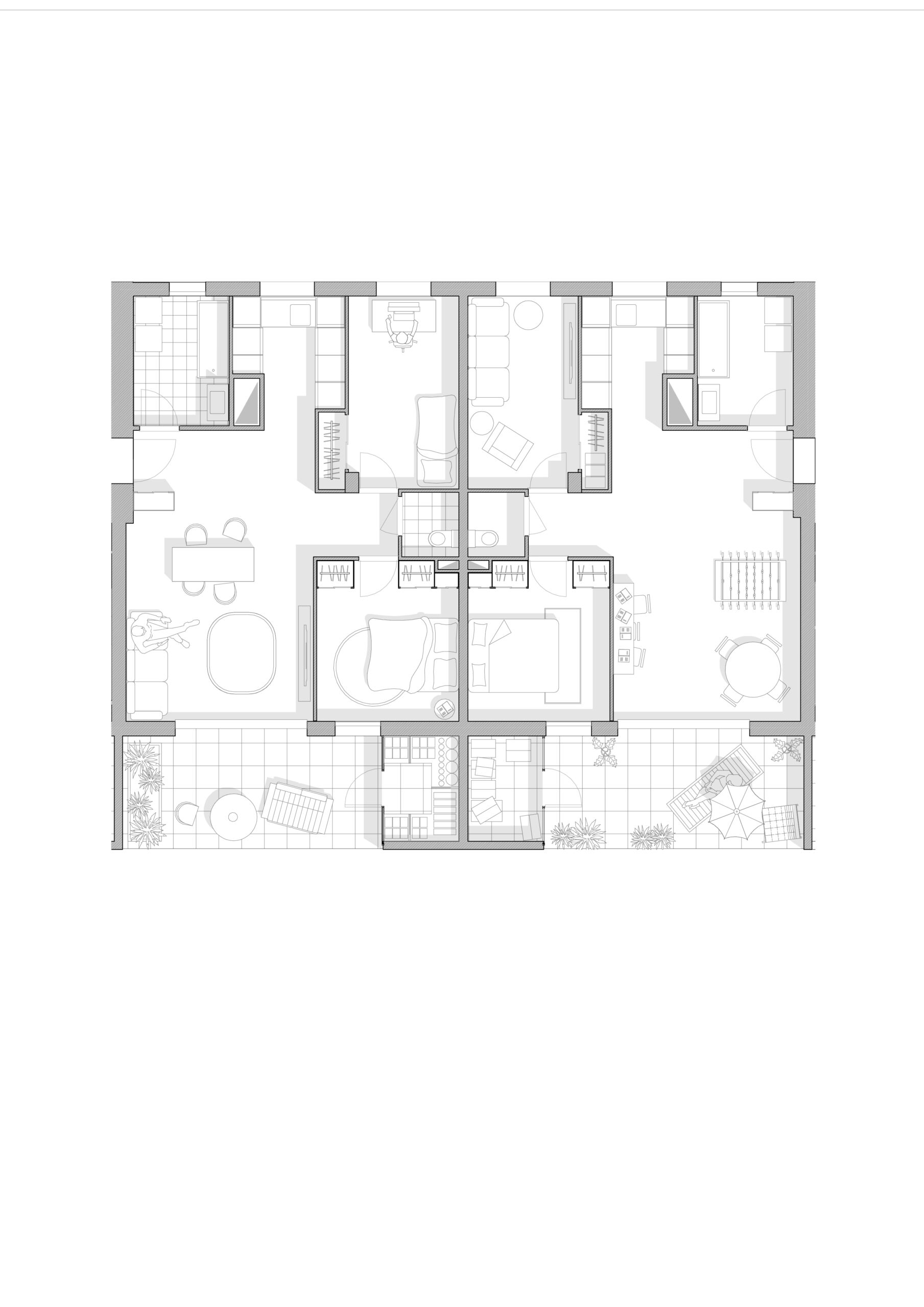
La finesse de l’épaisseur bâtie, qui permet des logements traversants ensoleillés du matin au soir.
La nature en ville, avec un accent mis sur les percées visuelles en direction des cœurs d’ilot plantés et des belvédères végétalisés.
L’architecture de toiture, qui permet d’habiter les toits, coiffe les bâtiments et rend accessible la 5ème façade par des maisons sur les toits qui se découpent dans le ciel.
La verticalité, qui par des jeux de pleins, de vides, de décrochés et de retraits casse les effets « barre » et les sensations de trop forte densité.
espaces extérieurs
et lumière naturelle
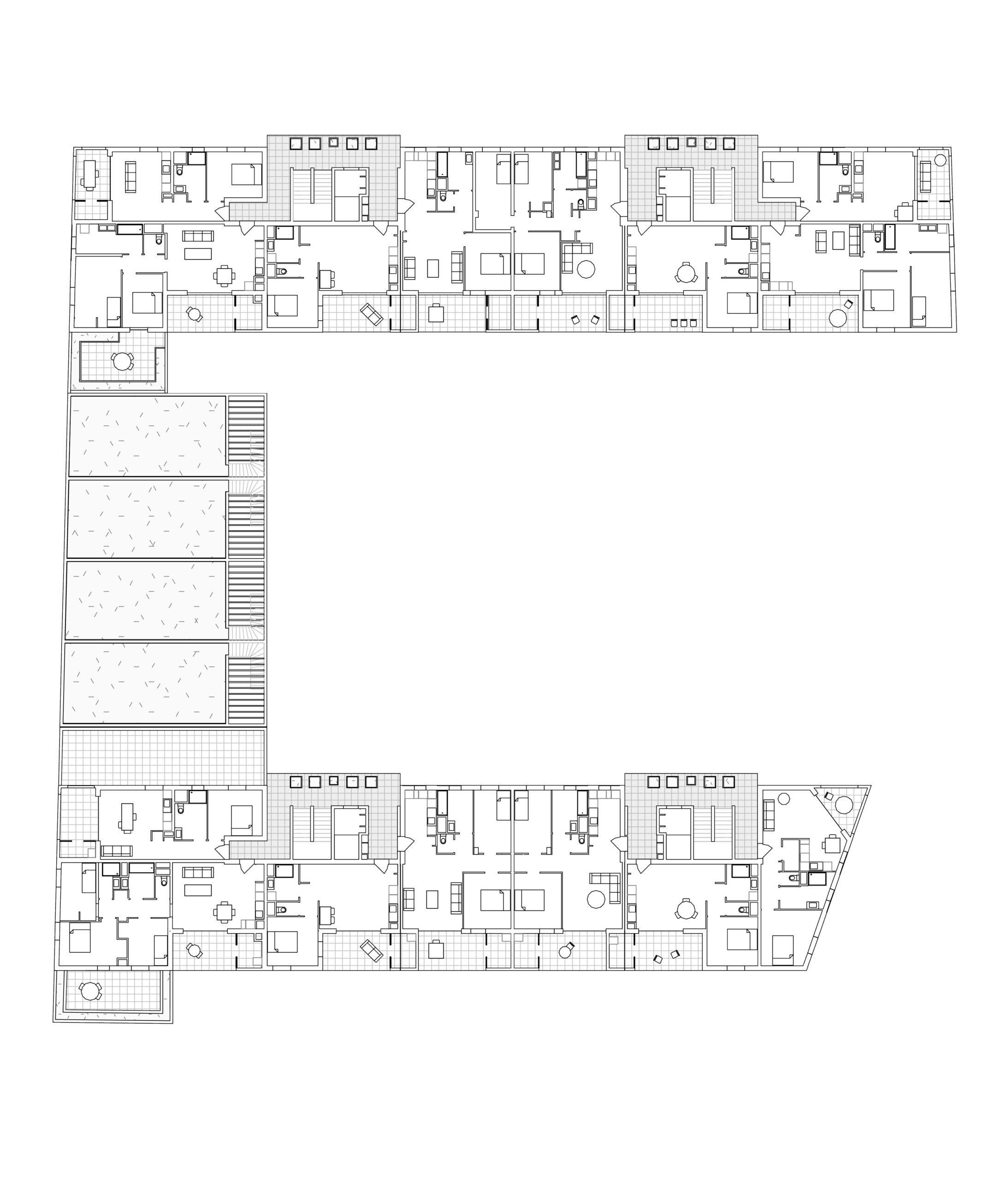
Face à la future place publique, donnant sur le parc National des Calanques et situé entre le futur Boulevard Urbain Sud et la rue Marta Hartmann, l’ilot mixte se compose de 70 logements, d’une conciergerie, de commerces, de logements/ateliers Soho et d’un parking. Trois bâtiments étroits et gradinés sont disposés en U, surmontés de toitures débordantes et libèrent un grand jardin au cœur de l’ilot.
Il s’agit d’un poumon vert pour le quartier : des espaces végétalisés en pleine terre, plantés d’arbres de haute tige qui formeront un vélum de fraicheur estivale et, un écrin de nature entre les logements étagés en gradins successifs.
L’épannelage progressif des fins bâtiments, permet de concevoir des logements traversants et bien exposés, ventilés naturellement et disposant de terrasses végétalisées. Ils sont ainsi, pour la majorité d’entre eux, équipés de cuisine en premier jour et de salles de bain éclairées naturellement.
ÉQUIPES PROJET
MAÎTRISE D’OEUVRE
Architecte et paysagiste : ANMA
Structure : ICES BTP
Fluides : G2i – Garcia Ingénierie
AMO Energie : E-nergy
BIM Manager : SigmaLynx
VRD : Cerretti
ÉTUDES
Camille Gravellier
Marie Merindol
PAYSAGE
Sébastien Moinet
CHANTIER
Daniella Avilès
FICHE TECHNIQUE
STATUT Réalisé
MAÎTRISE D’OUVRAGE
Pitch Promotion
LIVRAISON Novembre 2025
SURFACE 4 758 m² SHAB, 69 logements
TRAVAUX 11,8 M€ HT indice BT01 août 2025
INDICE CARBONE CONSTRUCTION 3 245.60 kgep.CO2/m²
PERSPECTIVES Noé Simonet
VOIR +
Clermont-Ferrand, Ilo23
Ivry-sur-Seine, Îlot Le Monde
Marseille, ZAC Vallon Régny