transformer un tri postal en logements
À l’échelle de la parcelle du tri postal et de son environnement proche, le schéma de composition urbaine proposait deux scénarios. Le Scenario 1 proposait la démolition complète du bâti existant et présentait une nouvelle forme urbaine impliquant la création d’une voie de desserte. Le Scénario 2 (retenu) propose de reconvertir le bâtiment du Tri Postal et de tirer parti de la qualité structurelle de celui-ci mêmes si des démolitions partielles peuvent être opérées.
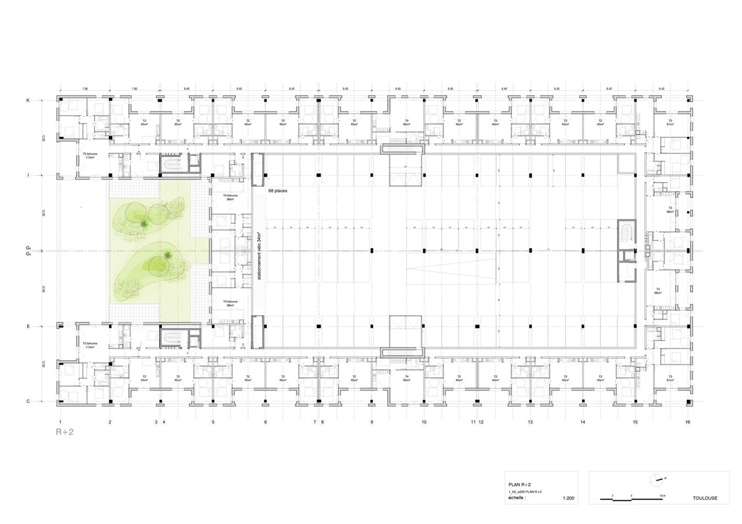
Le bâtiment de l’ancien tri postal occupe le cœur de la parcelle sur une emprise de 6 226 m² environ. Les accès à la parcelle et au bâtiment se font à la fois depuis le chemin de Bordeblanche et du chemin de Ramelet Mundi. Une desserte interne encadre le bâtiment et permet l’accessibilité à toutes les ailes de celui-ci.
typologies de logements diversifiées
Aussi, divers espaces de stationnements s’organisent le long de cette desserte. Le bâtiment est constitué d’une extension en rez-de-chaussée (structure métallique), d’un corps central sur deux niveaux (les ateliers de tri) et d’une partie en R+3 consacrée aux bureaux et locaux annexes.
Autour du bâtiment, divers espaces verts plantées définissent les limites de la parcelle. La démolition de la partie centrale du bâtiment permet de libérer son cœur et rend possible son aménagement. Les hauteurs existantes sous-poutres sur les deux niveaux permettent de créer deux dalles supplémentaires pour rendre le bâtiment habitable et intégrer une programmation en logements très diversifiée.
parking silo intégré
au cœur libéré
Les trois premiers niveaux sont dédiés à un parking silo intégré, au centre, et à des logements mono-orientés en duplex. Les logements à rez-de-chaussée bénéficient de jardins privatifs avec des accès indépendants.
Des espaces interclimatiques en extension de la structure existante (loggias, serres, vérandas) complètent ce dispositif et animent les façades est et ouest. Au niveau du R+3, des logements traversants est-ouest donnent sur le jardin haut aménagé au cœur. Un niveau supplémentaire est créé en R+4.
individuel, intermédiaire et collectif
Autour du tri postal et du jardin commun s’organisent des logements de typologies variées (habitat individuel, intermédiaires et collectifs) avec jardins privatifs. Des logements individuels en R+1 bordent la parcelle à l’ouest et entretiennent le lien avec le bâti existant.
À l’est, trois bâtiments collectifs en R+3 rythment la façade sur rue. Sur la parcelle au nord du parvis, trois lots d’habitats diversifiés allant du R+3 au R+1 sont adressés sur la future desserte.
ÉQUIPES PROJET
MAÎTRISE D’OEUVRE
Arcihtecte : ANMA
Économie : Michel Forgue
VRD : Axe Ingénierie
Acoustique : Gamba Acoustique
Fluides, thermique : ABM Énergie Conseil
Structure : SIC
ÉTUDES URBAINES
Ilias Rasmouni
Sophie Morgenthaler
ÉTUDES ARCHITECTURALES
Olivier Calvarese
Clémentine de Sorbay
FICHE TECHNIQUE
STATUT Réalisé
MAÎTRISE D’OUVRAGE SCI Arkadea
CALENDRIER 2017
SURFACE 6 194 m² SHAB
TRAVAUX 10,3 M€ HT, indice BT01 août 2025
PERSPECTIVES Charles Wallon
PHOTOGRAPHIE Vincent Fillon
VOIR +
Bordeaux, Halle Boca
Clermont-Ferrand, Ilo23
Paris, Halle aux Farines